This three level Victorian terrace boasts a versatile configuration as an impressive home or two independent living areas plus a studio on an elevated 260sqm block. Designed to maximise the scenic city views over Anzac Bridge from all levels, the home features an integrated flow to three big covered terraces.
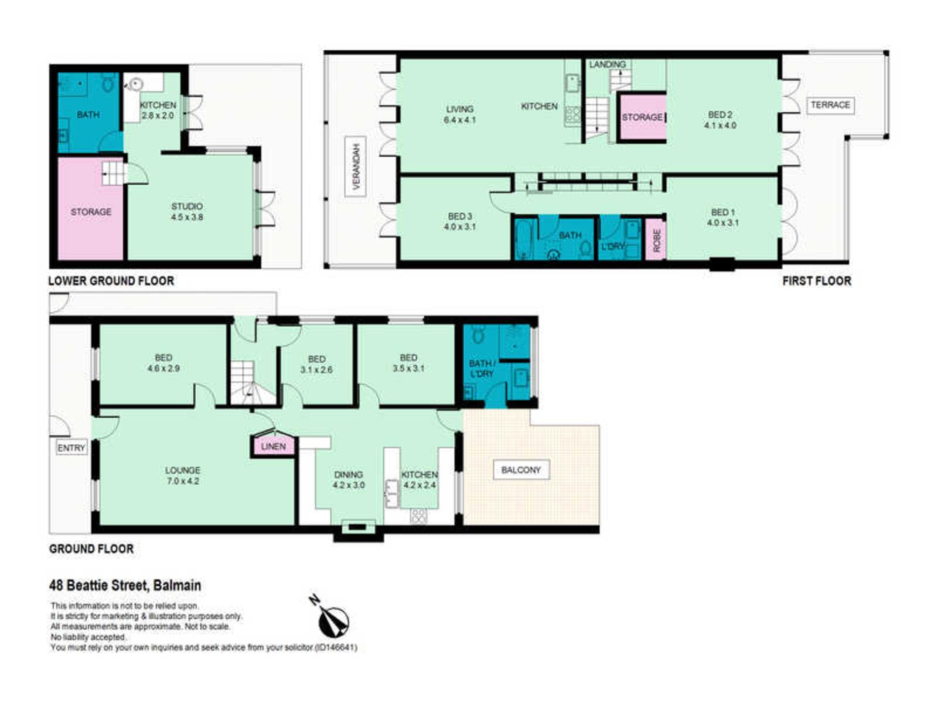
*Ground floor includes 3 beds, 1 bathroom, gas kitchen, living and dining
*First floor includes 3 beds, 1 bathroom, gas kitchen, living, dining, laundry
*Studio has French doors leading to leafy garden and views
*Soaring ceilings, original Kauri floors, tongue and groove detailing
*Glass roof feature creates a warm, light-suffused sanctuary
* 280sqm floorplan perfect for large or extended families and investors/developers
*Three private entries, vast storage, quantum heating, gas bayonets
*Minutes to bus stop, cafes, restaurants, shops and bars
*Close to parks, harbour front and Balmain Wharf
*Within walking distance of Balmain Primary and Balmain Secondary College
SOLD $2,182,500
































